Piękne 3pokojowe mieszkanie z balkonem w spokojnej okolicy

Dodane: Piątek, 17 Październik, 2025  13:49
598 944 zł
9819 zł/m2

Szczegóły ogłoszenia

  • Kategoria: Mieszkania / Sprzedaż
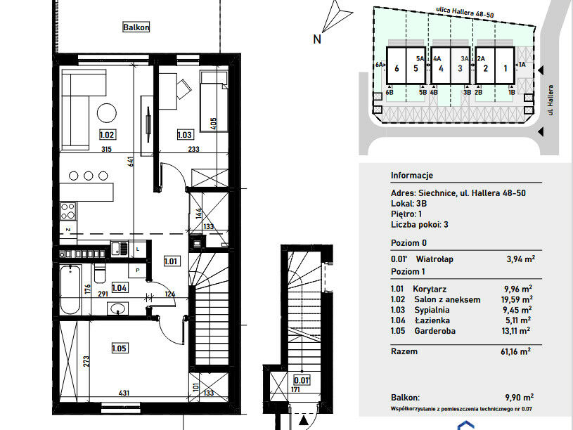
  • Powierzchnia:61 m2
  • Liczba pokoi:3 pokoje
  • Zabudowa:Dom
  • Piętro :1 piętro
  • Liczba pięter:1 piętro
  • Rynek:Pierwotny
  • Rok budowy:2026
  • Sprzedaż:Pośrednik

Opis oferty

Wyjątkowa inwestycja, która oferuje swoim mieszkańcom nie tylko komfortowe mieszkanie, ale także wysoki standard życia. Położona w spokojnych Siechnicach, z dala od miejskiego zgiełku, zapewnia jednocześnie łatwy dostęp do wszelkich udogodnień. Dzięki przemyślanej architekturze i zastosowaniu wysokiej jakości materiałów mieszkania są nie tylko piękne, ale również funkcjonalne. W otoczeniu znajduje się niska zabudowa głównie domów jednorodzinnych, a tereny otaczające inwestycję sprzyjają spacerowiczom, uprawianiu sportu oraz wszelkiej rekreacji na łonie natury, wzdłuż rzeki i tuż przy zbiorniku wodnym – znanej w okolicy Błękitnej Lagunie.

Prezentowane mieszkanie ma powierzchnię 61,16m2 i znajduje się na pierwszym piętrze w dwukondygnacyjnym budynku a jego główne cechy to- salon z aneksem kuchennym o powierzchni 19,59m2 z wyjściem na duży balkon o powierzchni 9,90m2, 2 sypialni o powierzchniach 13,11m2 i 9,45m2 , korytarz o powierzchni 9,96m2, wiatrołap o powierzchni 3,94m2 oraz łazienka o powierzchni 5,11m2.

• Ogrzewanie podłogowe na każdej kondygnacji

• Elektryczne rolety zewnętrzne

• Mieszkanie rozkładowe i dwustronne

• Dwa miejsca postojowe

• Sprawny dojazd do Wschodniej Obwodnicy Wrocławia, DK94 i autostrady A4.

• Sprawny dojazd do Wschodniej Obwodnicy Wrocławia, DK94 i autostrady A4.

• Doprowadzenie światłowodu do inwestycji

Termin realizacji inwestycji – 2026-02-28- Cena miejsca postojowego naziemnego -10 000, do każdego mieszkania dostępne są dwa miejsca, zakup jest obligatoryjny. Dostępne są również dwustanowiskowe miejsca postojowe zależne w cenie 5000 za miejsce.

Zapraszam do kontaktu w celu przygotowania oferty / umówienia się na prezentacje – Kupujący nie płaci prowizji.

Zapewniam

- profesjonalną obsługę, gwarantowaną wieloletnim doświadczeniem w branży nieruchomości-możliwość bezpłatnej rezerwacji apartamentu

- kompleksowe wsparcie na każdym etapie transakcji

- gwarancję bezpiecznego zakupu

- oszczędność czasu

-pomoc w uzyskaniu kredytu na najlepszych warunkach

- kompleksowe doradztwo

Ania Kamuda- Doradca klienta

tel. 535 - pokaż numer telefonu -

@

Nr oferty HG/PS/3B/AK

Zamieszczone na naszych stronach informacje nie stanowią oferty w rozumieniu Kodeksu Cywilnego, a dane w nich zawarte mają jedynie charakter informacyjny.

OFERTA CENOWA AKTUALNA NA DZIEŃ 17.10.2025 I OBOWIĄZUJE DO DNIA 17.10.2025
Powiadom o podobnych ogłoszeniach
Lokalizacja: Siechnice
Kategoria: Nieruchomości » Mieszkania » Sprzedaż
Cena: od 509000 zł do 689000 zł Powierzchnia : od 52 m2 do 70 m2

Chcę otrzymywać powiadomienia o nowych ofertach

Uzupełnij adres e-mailWpisz poprawny adres e-mail
Wyślij wiadomość

Wyślij wiadomość

Konto firmowe
Na Lento.pl od 03 lip 2022
Odpowiada szybko
Strona użytkownika
  • Wypromuj
  • Zgłoś naruszenie
  • Drukuj ulotkę
  • Edytuj/usuń
Wyczyść historię

Udostępnij ogłoszenie

Udostępnij na FacebookUdostępnij na X Kopiuj link do ogłoszenia

Dodaj notatkę

Opis musi być krótszy niż 250 znaków